wohnhaus müller solothurn, sanierung und dachausbau | |
![]() | |
| auftraggeber | christian müller, ch-4500 solothurn |
| architekt | 2bm architekten gmbh, ch-4502 solothurn |
| bauzeit | sanierung mai'13 - juli'13 |
| ausgangslage | beim im originalzustand erhaltenen, einseitig angebauten wohnhaus aus den dreissiger jahren mussten gemäss behödlichen auflagen die heizung sowie die elektrischen installationen erneuert werden. |
| sanierung | das gebäude wurde sanft renoviert. erscheinungsbild sowie raumaufteilung wurden dabei nicht verändert und auch der originale innenausbau blieb erhalten. die sanierung umfasste folgende arbeiten: |
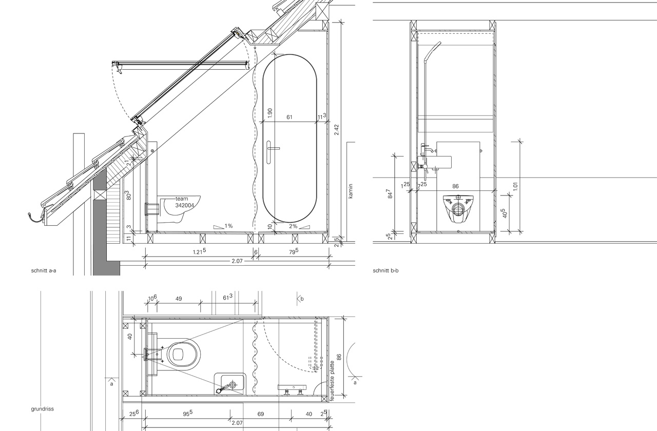
| dachausbau | der zur zeit unbeheizte dachstock soll zu einem mehrzweckraum ausgebaut werden. dazu werden sämtliche einbauten entfernt, auf der nord- und südseite je ein grosses dachflächenfenster eingebaut und eine innendämmung eingebracht. eine kleine nasszelle und eine teeküche erlauben die nutzung auch als studio. die ausführung ist für 2017 geplant. |




